반응형
반갑습니다!
초아디자인 입니다:)
셀프 인테리어 준비의 시작!
도면 제작 문의주세요:D
서울 특별시 송파구 가락동
주거복합빌딩
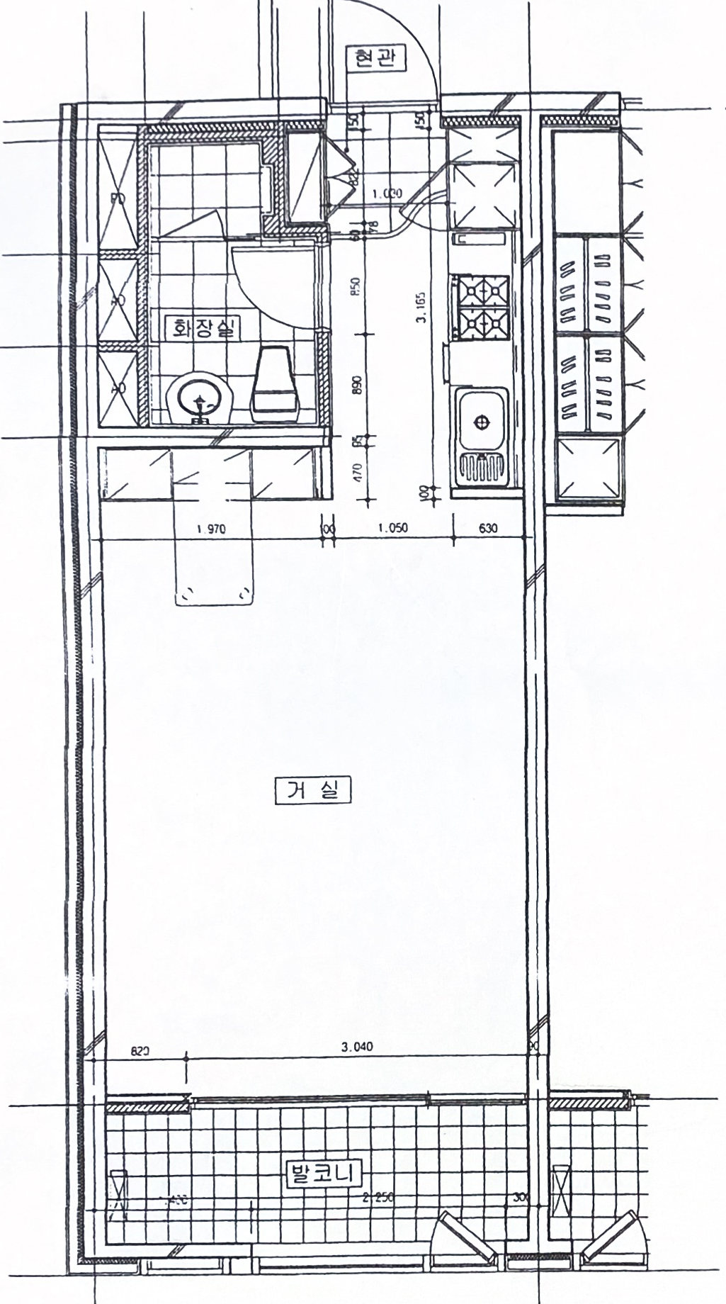
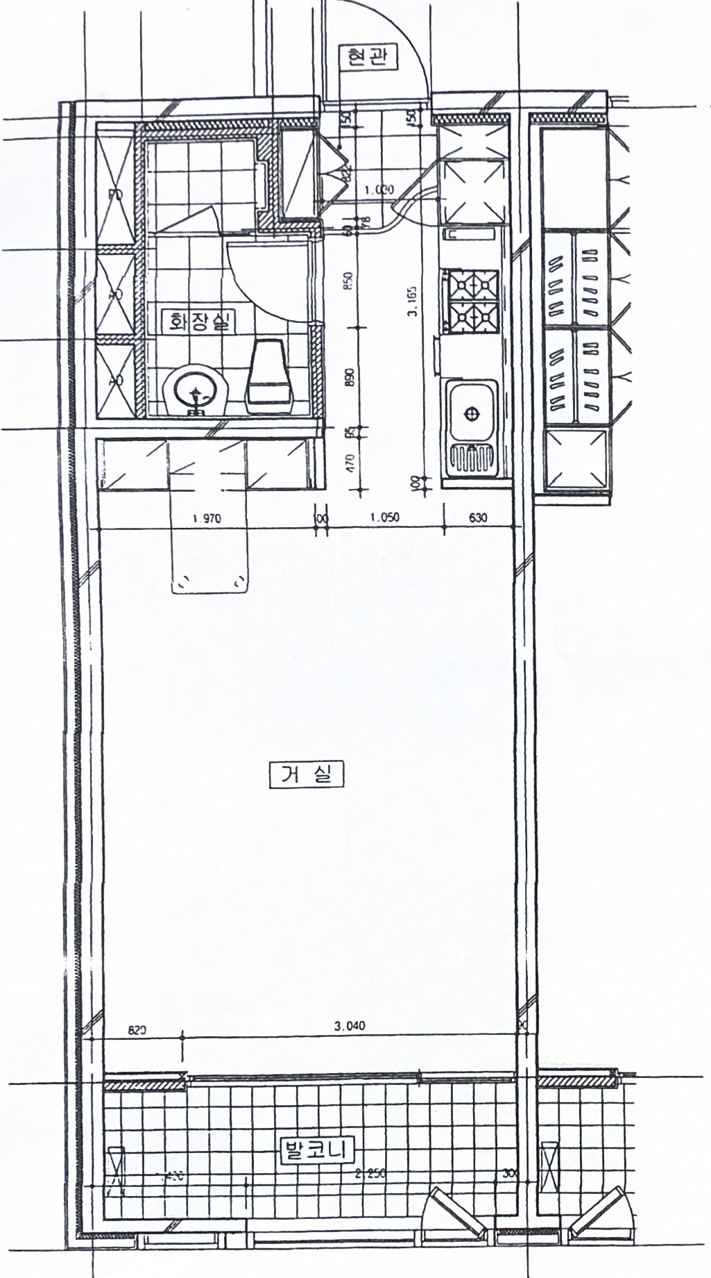
기존 평면도

3D시안

평면도


천정도

투시도




입면도


화장실


시안을 통해 미리 공간을 확인해보고 인테리어 준비하세요.
도면만 가지고도 바로 공사에 들어갈 수 있게 도면을 준비해드리겠습니다.
상담은 아래로 문의주세요:)
↓↓↓↓ Click! ↓↓↓
초아디자인님의 오픈프로필
아직도 상상으로 인테리어 하세요? 두눈으로 미리 확인하며 준비하세요!
open.kakao.com
반응형
'포트폴리오' 카테고리의 다른 글
| [스케치업 프리랜서] 광명 30평 / 아파트 인테리어 / 셀프인테리어 준비 (0) | 2022.11.26 |
|---|---|
| [스케치업 프리랜서] 검단 33평 / 아파트 인테리어 / 셀프인테리어 준비 (0) | 2022.11.26 |
| [스케치업 프리랜서] 송파구 28평 / 주택 인테리어 / 셀프인테리어 준비 (0) | 2022.11.20 |
| [스케치업 프리랜서] 하남 37평 / 아파트 인테리어 / 셀프인테리어 준비 (0) | 2022.11.20 |
| [스케치업 프리랜서] 인천 32평 아파트 인테리어 / 아파트 인테리어 / 셀프인테리어 준비 (0) | 2022.11.20 |