반응형
반갑습니다!
초아디자인 입니다:)
셀프 인테리어 준비의 시작!
도면 제작 문의주세요:D
서울 특별시 송파구
석촌동 빌라
28평
기존 평면도

오래된 건물인 경우 현장과 도면이 다른 경우가 많습니다.
이곳은 현장사진과 실측을 거쳐 수정된 도면으로 인테리어 준비를 마쳤답니다 :)
평면도


아이소




천정도

거실




주방


안방

아들 방

화장실


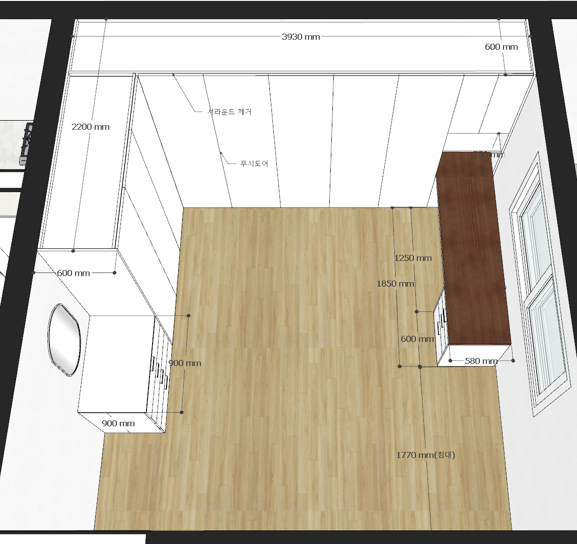
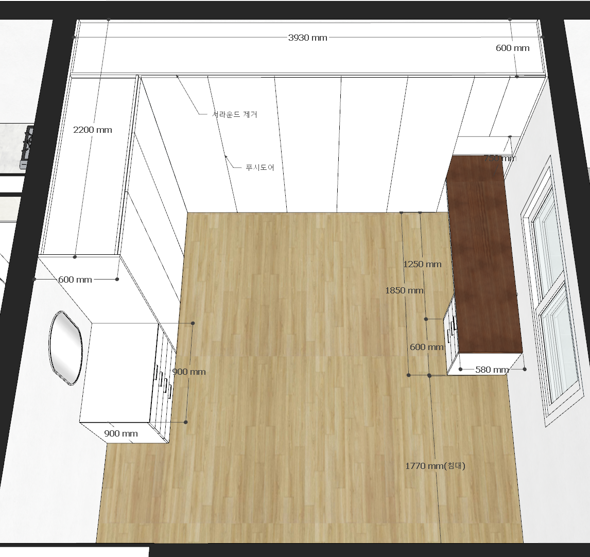
상세 치수 도면






3D 시안



시안을 통해 미리 공간을 확인해보고 인테리어 준비하세요.
도면만 가지고도 바로 공사에 들어갈 수 있게 도면을 준비해드리겠습니다.
상담은 아래로 문의주세요:)
↓↓↓↓ Click! ↓↓↓
초아디자인님의 오픈프로필
아직도 상상으로 인테리어 하세요? 두눈으로 미리 확인하며 준비하세요!
open.kakao.com
반응형
'포트폴리오' 카테고리의 다른 글
| [스케치업 프리랜서] 검단 33평 / 아파트 인테리어 / 셀프인테리어 준비 (0) | 2022.11.26 |
|---|---|
| [스케치업 프리랜서] 가락동 주거복합빌딩 / 원룸 인테리어 / 셀프 인테리어 준비 (0) | 2022.11.20 |
| [스케치업 프리랜서] 하남 37평 / 아파트 인테리어 / 셀프인테리어 준비 (0) | 2022.11.20 |
| [스케치업 프리랜서] 인천 32평 아파트 인테리어 / 아파트 인테리어 / 셀프인테리어 준비 (0) | 2022.11.20 |
| [스케치업 프리랜서] 청주 33평 아파트 인테리어 / 아파트 인테리어 / 셀프인테리어 준비 (0) | 2022.11.20 |