반응형
반갑습니다!
초아디자인 입니다:)
셀프 인테리어 준비의 시작!
도면 제작 문의주세요:D
인천 부평구
삼산타운주공7단지아파트
32평
기존 평면도

평면도

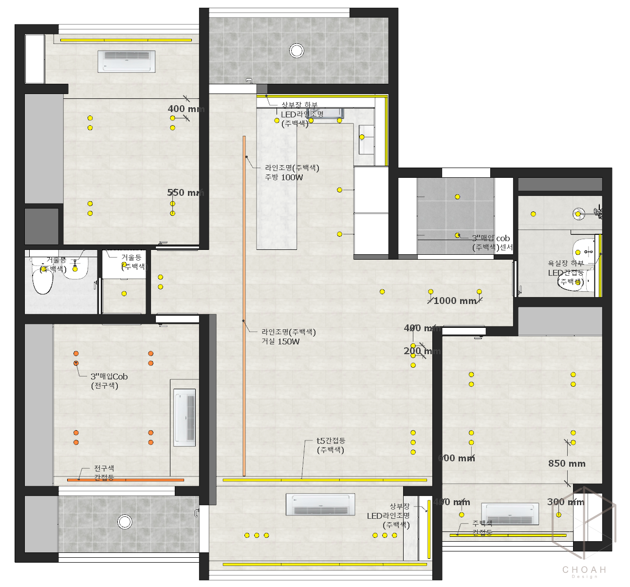
천정도

아이소




현관

거실



주방



안방


방1,2


화장실


상세치수


3D시안




시안을 통해 미리 공간을 확인해보고 인테리어 준비하세요.
도면만 가지고도 바로 공사에 들어갈 수 있게 도면을 준비해드리겠습니다.
상담은 아래로 문의주세요:)
↓↓↓↓ Click! ↓↓↓
초아디자인님의 오픈프로필
아직도 상상으로 인테리어 하세요? 두눈으로 미리 확인하며 준비하세요!
open.kakao.com
반응형
'포트폴리오' 카테고리의 다른 글
| [스케치업 프리랜서] 가락동 주거복합빌딩 / 원룸 인테리어 / 셀프 인테리어 준비 (0) | 2022.11.20 |
|---|---|
| [스케치업 프리랜서] 송파구 28평 / 주택 인테리어 / 셀프인테리어 준비 (0) | 2022.11.20 |
| [스케치업 프리랜서] 하남 37평 / 아파트 인테리어 / 셀프인테리어 준비 (0) | 2022.11.20 |
| [스케치업 프리랜서] 청주 33평 아파트 인테리어 / 아파트 인테리어 / 셀프인테리어 준비 (0) | 2022.11.20 |
| [스케치업 프리랜서] 하남 39평 인테리어 / 아파트 인테리어 / 셀프인테리어 준비 (0) | 2022.11.20 |