반응형
반갑습니다!
초아디자인 입니다 : )
오늘 소개해 드릴 곳은?
청주시
테크노폴리스 우미린
33평 E Type
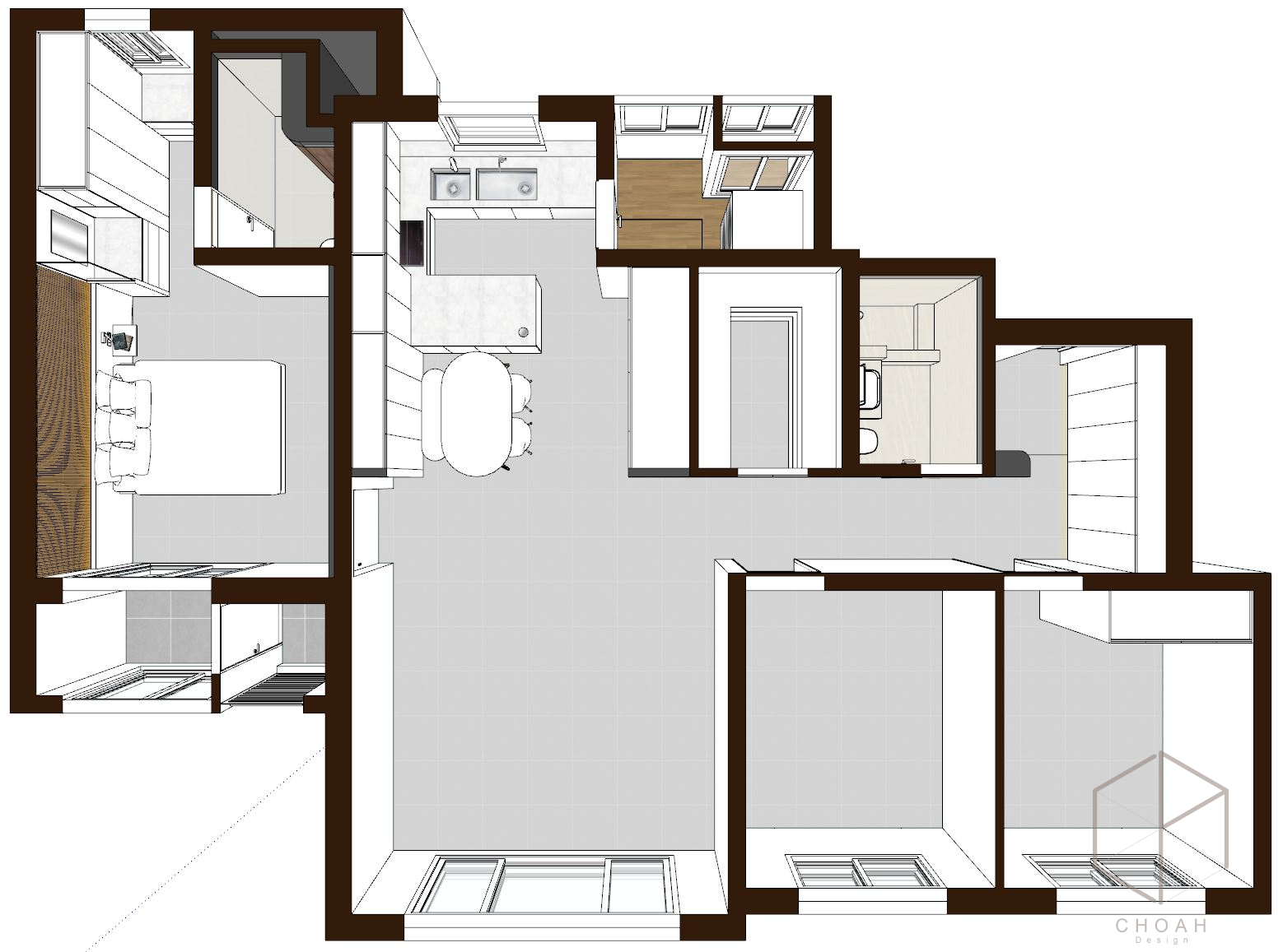
기존 평면도

평면도

천정도

현관




'수납도 많이 필요하지만 현관 디자인도 놓치기 싫어요!'
그래서 중문은 과감히 포기하고 벽면은 모두 신발장으로,
반대편은 벤치와 전신거울로 꾸며 주었어요.
거실


거실은 우물 천정 말고는
깔끔하게 원하셨어요:)
주방



평수를 줄여 이사가는 고객님께서는
주방의 수납을 많이 되는것을 요구하셨어요.
벽면과 아일랜드 앞까지 알차게 수납으로 계획했답니다:)
안방


템바보드와 간접조명으로 호텔 분위기를 내었어요.
침대 옆 독서조명과 콘센트도 설치했어요:)
화장실



거실 화장실은 조적 욕조와 매립수전으로 디자인 하였고
깨알같은 매립 선반과 계단도 넣었답니다:)
세탁실


시안을 통해 미리 공간을 확인해보고 인테리어 준비하세요.
도면만 가지고도 바로 공사에 들어갈 수 있게 도면을 준비해드리고 있습니다.
상담은 아래로 문의 주세요:)
초아디자인님의 오픈프로필
아직도 상상으로 인테리어 하세요? 두눈으로 미리 확인하며 준비하세요!
open.kakao.com
반응형
'포트폴리오' 카테고리의 다른 글
| [스케치업 프리랜서] 가락동 주거복합빌딩 / 원룸 인테리어 / 셀프 인테리어 준비 (0) | 2022.11.20 |
|---|---|
| [스케치업 프리랜서] 송파구 28평 / 주택 인테리어 / 셀프인테리어 준비 (0) | 2022.11.20 |
| [스케치업 프리랜서] 하남 37평 / 아파트 인테리어 / 셀프인테리어 준비 (0) | 2022.11.20 |
| [스케치업 프리랜서] 인천 32평 아파트 인테리어 / 아파트 인테리어 / 셀프인테리어 준비 (0) | 2022.11.20 |
| [스케치업 프리랜서] 하남 39평 인테리어 / 아파트 인테리어 / 셀프인테리어 준비 (0) | 2022.11.20 |